11 image 0863

Une entrée avec verrière

Un appartement " pilier " en plein centre du 6ème

RÉNOVATION COMPLÈTE D’UN APPARTEMENT SITUÉ À LYON

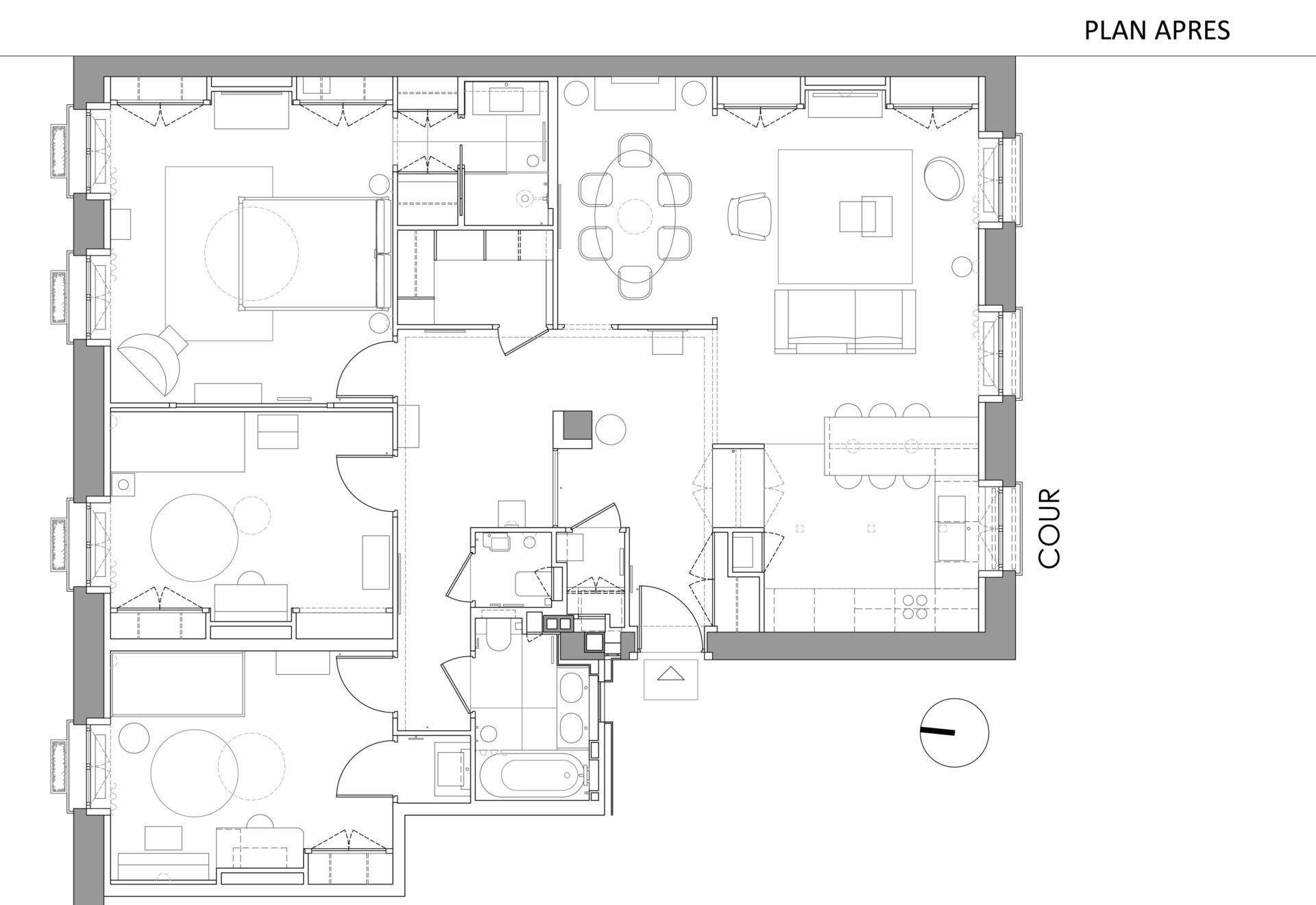
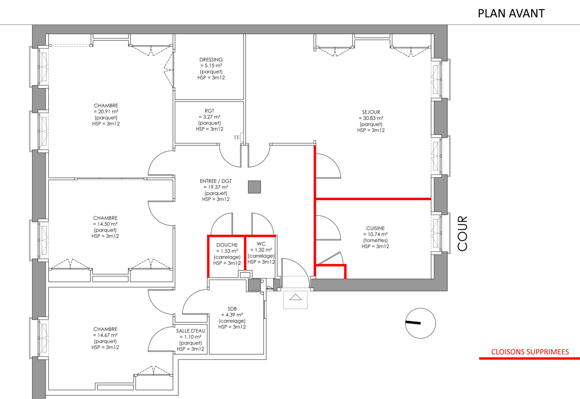
Cet appartement, traversant nord-sud est typiquement lyonnais : présence d’alcoves dans les deux plus grandes pièces, façades extérieures sobres, hautes portes intérieures vitrées et moulurées … Il s’organise autour d’un grand dégagement central qui dessert l’ensemble des pièces et qui s’articule autour d’un pilier porteur central. Les pièces de vie disposent de très beaux volumes avec une hauteur sous plafond de 3m12.

Néanmoins, il était très cloisonné et bien que lumineux dans les pièces principales, le hall d’entrée manquait de clarté. Le projet a donc consisté à décloisonner l’espace de vie en ouvrant la cuisine sur le séjour et sur l’entrée. Ainsi la lumière pénètre désormais jusqu’au cœur de l’appartement, des percées visuelles sont ainsi créées pour participer à l’effet souhaité : rendre cet appartement contemporain et ouvert sur lui-même. En outre, grâce à l’ouverture de la cuisine sur le séjour, les perspectives sont prolongées et permettent désormais de profiter pleinement de la vue sur les arbres de la cour. L’idée était donc de conserver une entrée généreuse, mais ouverte et lumineuse. En outre, il fallait conserver la fonction distributrice première de l’entrée, l’identité et le cachet de l’ensemble.

Concernant l’aspect technique, dans les espaces de services (sanitaires, buanderie, rangement etc.) et dans le hall d’entrée, un faux plafond a été créé pour intégrer les équipements nécessaires et demandés (éclairages directes et indirectes, sonorisation, VMC hygroréglable, réseaux de plomberie et de climatisation …). Les espaces nobles ont quant à eux conservés leur belle hauteur sous plafond. Les réseaux électriques (à l’origine en apparents avec goulottes) ont été totalement incorporés dans les murs, cloisons et faux-plafonds. Une salle d’eau a été créée pour la chambre principale et le WC principal a été déplacé pour être plus intime : cela a nécessité la création d’encoffrements qui intègrent les alimentations et les évacuations. Des trappes de visite permettent l’accès aux différents équipements nécessitant un contrôle ou une maintenance.

Verrière : VITRAUX MONEL et CMM

Type

Appartement

Localisation

Lyon 6ème

Nature de la mission

Mission complète

Maitrise d'ouvrage

Privé (un couple avec 2 enfants)

Début des travaux

Septembre 2025

Fin des travaux

Décembre 2025

Surface

128 m²

Montant des travaux

NC